旭ハウス工業
中古 水洗式仮設トイレ 和式 旭ハウス工業 AUG-1W+15WS
中古 水洗式仮設トイレ 和式 旭ハウス工業 AUG-1W+15WS
在庫切れ
- 納品方法:配達、または店頭受け取り
- お受け取り店舗の住所:兵庫県尼崎市神崎町1-40
- 配送目安:1~3営業日で出荷
受取状況を読み込めませんでした
屋外でも快適なトイレ環境を! 水洗式で衛生的、頑丈な中古仮設トイレ
「仮設トイレ、もっと快適にならないかな…」イベント会場や農場、倉庫など、さまざまな場所でトイレ環境の悩みは尽きない。そんな時、管理担当の田中さんも同じ悩みを抱えていた。
「トイレのニオイが気になるし、掃除も大変…。でも、新品を導入するのはコストがかかるし…」そんな時に出会ったのが、旭ハウス工業の中古水洗式仮設トイレだった。「水洗式ならニオイの心配も少ないし、清潔に使える!
しかも、中古だからコストも抑えられるし、必要な設備はしっかり揃っている!」田中さんはすぐに導入を決定。その結果、利用者の満足度が向上し、トイレ環境の改善が快適な空間作りにつながるのを実感した。
商品の特徴
- 水洗式だから衛生的:給排水設備を接続すれば、家庭用トイレと同じように使用可能。
- 耐久性バツグン:超高分子ポリエチレン製で衝撃に強く、腐食しにくい。
- 臭いが気にならない:下水道や浄化槽へ直接排水できるため、衛生的で快適。
- 幅広い用途に対応:建築現場、イベント会場、農場、資材置き場などに最適。
商品の状態
状態ランク:A
中古としてはかなり状態の良い商品です。サビ、キズ、曲り、塗装やコンクリートの付着が少ないです。
直近まで問題なく使用されており、便器や外装に若干の汚れはあるものの、洗浄すれば落とせる程度です。嫌な臭いはなく、亀裂や水漏れも一切ありません。可動部もスムーズに動作します。
仕様
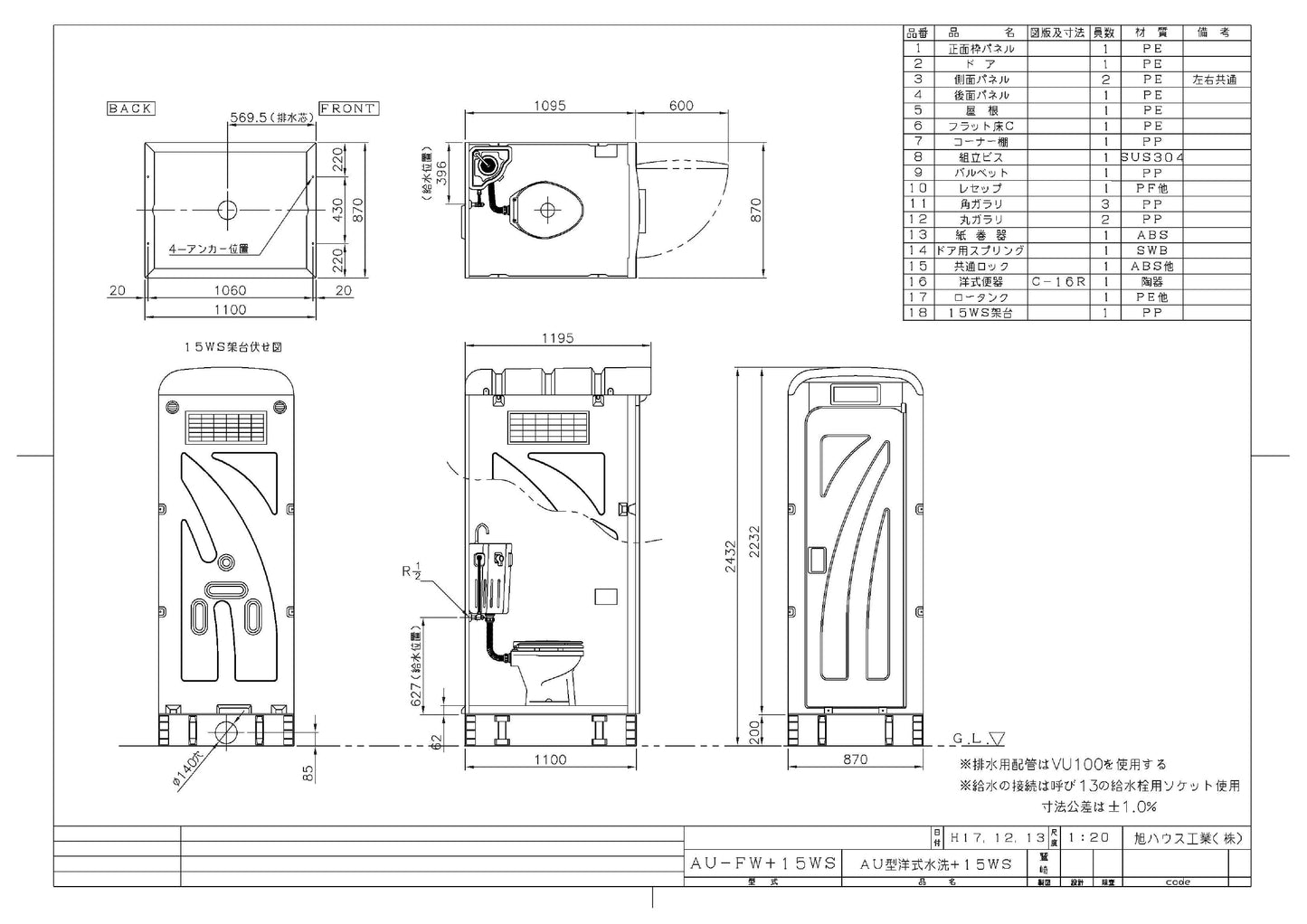
[品名]中古 仮設トイレ
[メーカー名]旭ハウス工業
[型番]AUG-1W+15WS
[内容量]1基
[寸法]幅870mm/高さ2,432mm/奥行1,100mm
[洗浄タイプ]水洗式
[便器]和式
[重量]約90kg
[付属品]スワレット(洋式便座)
[別名]仮設トイレは、プレハブトイレ、工事現場トイレ、屋外トイレ、移動式トイレ、野外トイレ、仮設便所とも呼ばれます。
[カタログ]https://www.asahi-house.com/product/59eb36b832410ad93225bbf3e73f4d47a4c5d56f.pdf(外部リンク)
[注意事項]
・給排水工事はお客様手配となります。
・固定方法は地域や仕様により異なります。
・排水管はVU75を使用。給水の接続は呼び13の給水栓ソケットを使用。
・配送後の返品はお受けできません。
・4tユニック車横付け降ろしが条件です。道幅・設置場所上空の電線等の障害物がない事をご確認ください。
・フォークリフトでも荷下ろし可能です。
まとめ
旭ハウス工業の水洗式仮設トイレなら、衛生的で利用者も大満足。中古品なのでコストを抑えつつ、快適な環境を実現できます。在庫には限りがありますので、お早めにお問い合わせください!



















ピックアップカテゴリ
-
枠組足場・ビデ足場
枠組足場・ビデ足場の販売ページへようこそ。枠組足場とは、建設現場で使用される足場の一種で、ビデ足場とも呼ばれます。その基本構成には、建枠、ジャッキベース、交差筋違、脚注ジョイント、アームロック、鋼製布板、階段枠、梁枠、壁つなぎ、手すり柱、手すりなど、多様な部材が含まれています。これらの部材は、足場全体を支える重要な役割を果たし、横揺れや垂直方向の力にしっかりと耐える設計となっています。特に、斜材と呼ばれる部材が取り付けられているため、強風や地震などの横方向からの力にも強く、優れた安定性を発揮します。また、枠組足場は主に鋼管や鋼材で構成されており、耐久性が高いことが特徴です。そのため、繰り返し使用でき、長期的なコスト削減が期待できます。
-
くさび足場・ビケ足場
くさび足場・ビケ足場の販売ページへようこそ。くさび足場とは、建設現場や土木工事で広く使用される足場の一種で、ビケ足場とも呼ばれています。この足場は、部材同士を「くさび」と呼ばれる金具で固定する構造を採用しており、迅速かつ安全に設置や解体が可能です。具体的には、以下の特徴があります。 迅速な組立と解体:くさび足場は、ハンマー1本で部材を固定できるため、短時間で効率的に組立や解体が行えます。 高い安定性と安全性:部材同士をしっかりと固定する仕組みのため、足場全体の安定性が高く、安全な作業環境を提供します。 コスト効率の良さ:簡単に設置・解体ができるため、作業時間を短縮できるほか、コスト削減にもつながります。
-
壁つなぎ/足場つなぎアンカー
壁つなぎの販売ページへようこそ。壁つなぎとは、建築現場で足場を建物の壁に固定するための部材や工法を指します。これにより、足場の倒壊や変形を防ぎ、高所作業の安全性を確保します。足場を安定させるための壁つなぎには、専用金物や単管パイプなどが用いられ、建物の構造や工事内容に応じた適切な製品を選ぶことが重要です。また、壁つなぎは設置間隔や使用方法について厳密な基準が設けられています。用途や作業環境に合った製品を選び、適切に施工してください。
-
単管パイプ/単管ジョイント
単管パイプ/単管ジョイントの販売ページへようこそ。単管パイプと単管ジョイントは、建築現場やDIYで幅広く活用される重要な資材です。 単管パイプは直径48.6mmの鋼管で、軽量な1.8mmタイプと高耐久の2.4mmタイプがあり、先メッキ、ドブメッキ、インラインメッキの3種類が選べます。仮設足場や太陽光架台、ビニールハウスなどの骨組み、DIYや農業支柱にも利用されています。 単管ジョイントは、パイプを連結するための継手金具で、形状やサイズが豊富です。ネジで圧着し抜けを防ぐタイプもあり、安全性と利便性を兼ね備えています。 用途や目的に応じて最適な単管パイプとジョイントを選び、安全で効率的な作業環境を実現しましょう。
-
仮囲い用フラットパネル/安全鋼板
仮囲い用フラットパネル/安全鋼板の販売ページへようこそ。 仮囲い用のフラットパネルとは、鋼板を折り曲げた接続できる構造を持ち、表面がフラットな形状のパネルです。表面がフラットで景観に優れており、見た目が重視される現場に適しています。 一方、安全鋼板とは、板同士を重ねて設置する鋼板です。施工が簡単で、フラットパネルに比べ短時間で設置が可能です。コストを抑えられる点がメリットですが、景観への配慮が必要な場所では使用が控えられることがあります。 どちらも工事現場や資材置場などを囲うために使用されるフェンス状の板で、工事現場への無断立ち入りを防止します。これにより、通行人の安全を守るだけでなく、盗難防止や作業環境の保護にも効果を発揮します。 納期:1~3営業日で出荷
-
仮設トイレ/ユニットハウス
仮設トイレ/ユニットハウスの販売ページへようこそ。仮設トイレとユニットハウスは、建設現場やイベント会場など、一時的な施設環境を整えるために欠かせない設備です。それぞれ、快適で効率的な作業環境の構築を支援します。 仮設トイレ:コンパクトな設計で設置が簡単。水洗式や簡易式など、用途に応じた選択が可能です。 ユニットハウス:事務所や休憩スペースとして利用できる頑丈な構造で、快適性と機能性を兼ね備えています。 これらの製品を活用して、現場やイベントでの利便性を高め、快適な環境を実現しましょう。
-
ジャッキベース/固定ベース
ジャッキベース/固定ベースの販売ページへようこそ。ジャッキベースおよび固定ベースは、工事現場や仮設足場で使用される重要な部品です。これらの製品は、仮設構造物の安定性を向上させ、安全な作業環境を確保するために欠かせません。 ジャッキベース:高さ調整機能を備えており、不整地や傾斜地での足場設置をサポート。作業の安全性と効率性を向上させます。 固定ベース:単管パイプをしっかりと固定するための基礎部品で、軽量ながら高い耐久性を持ち、簡単に設置・撤去が可能です。
-
ガードフェンス/単管バリケード
ガードフェンス/単管バリケードの販売ページへようこそ。ガードフェンスと単管バリケードは、安全管理や区画整理に欠かせない仮設設備です。どちらも、以下のような場面で使用されます。 交通管理: 道路沿いや交差点で、車両や歩行者の安全を確保するために活用。 建設現場: 工事エリアの境界線を示し、作業員や周囲の人々の安全を守ります。 防犯・セキュリティ: 重要施設や私有地周辺に設置し、不正侵入を防止。 これらの製品は、工事現場や公共施設、イベント会場など、さまざまなシーンで活躍します。用途や目的に応じた最適な製品をぜひお選びください。
-
なまし番線/結束線/帯鉄
なまし番線/結束線/帯鉄の販売ページへようこそ。なまし番線、結束線、帯鉄は、建設現場や作業現場で欠かせない結束・固定用の資材です。用途や目的に応じて使い分けることで、効率的かつ安全な作業が可能になります。 なまし番線: 柔軟性があり、曲げやすいため、作業効率が求められる現場で活躍します。 結束線: 細い形状で、資材や構造物の仮固定や結束に最適です。 帯鉄: 高い強度を持ち、大型資材の固定や梱包に適しています。適切な資材を選んで、現場作業の効率と安全性を向上させましょう。